Ground Floor
Main Street
Open Plan
Permit In Hand
Storage
Semi Finished
Unfurnished
Server Room
Wheelchair Accessible
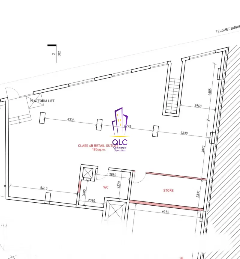
ST JULIANS | An opportunity to buy or lease a brand new office space in one of the most sought after areas in Malta. This porperty is currently being finished as we speak so it poses a great opportunity for the client to have it finished to their liking. Measuring a total od 300 internal sqm, with two internal bathrooms and the possibility to combine with the higher floor. This property may also be used as a catering establishment in a prime area with the correct permit application. Viewings are highly recommended.

Contact

Fill out the form and one of our specialist will get in touch with you.

Contact Steve Mercieca about Property
Ref No : 61017
Error!
Error!
Error!
Error!