Kitchen
SLIEMA - Office space for lease in Sliema. This premises features:
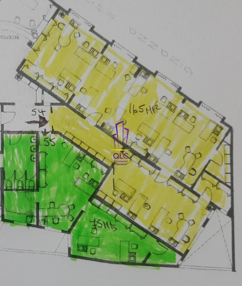
- 165 sqm of office space with the possiblity of additional 75sqm space if needed
- Kitchenette/ bathroom
- 3 rooms ( or 4 if extended)
- Air-conditioning throughout
- Lift access
This office is part of a dedicated office block , situated in the heart of Sliema commercial area, with all the cafes, restaurants and shops right on the door step.
Viewings highly recommended!
- 165 sqm of office space with the possiblity of additional 75sqm space if needed
- Kitchenette/ bathroom
- 3 rooms ( or 4 if extended)
- Air-conditioning throughout
- Lift access
This office is part of a dedicated office block , situated in the heart of Sliema commercial area, with all the cafes, restaurants and shops right on the door step.
Viewings highly recommended!
Contact
Fill out the form and one of our specialist will get in touch with you.
Contact Tigne Branch about Property
Ref No : 56451
Error!
Error!
Error!
Error!