Private Entrance
Air Conditioning
Ground Floor
Highly Finished
Kitchenette
Main Street
Modern
Natural Light
Open Plan
Storage
Unfurnished
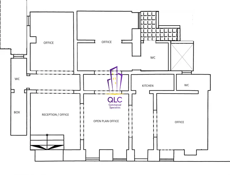
VALLETTA : A welcoming office in this sought after part of Valletta. Excellent location for a notarial or lawyers office. This property boasts excellent mobern finishings with its own private entrance set within a typical Valletta Baroque Building. Spread over one hundred square meters internal space and a little yard the property has three restrooms, a kitchenette and a welcoming reception area. The property is fully airconditioned with data and cctv wiring preinstalled.

Contact

Fill out the form and one of our specialist will get in touch with you.

Contact James Bugeja about Property
Ref No : 62027
Error!
Error!
Error!
Error!