Offices in Valletta set over 2 floors on 3rd and 4th floor with use of lift and a reception at building entrance.
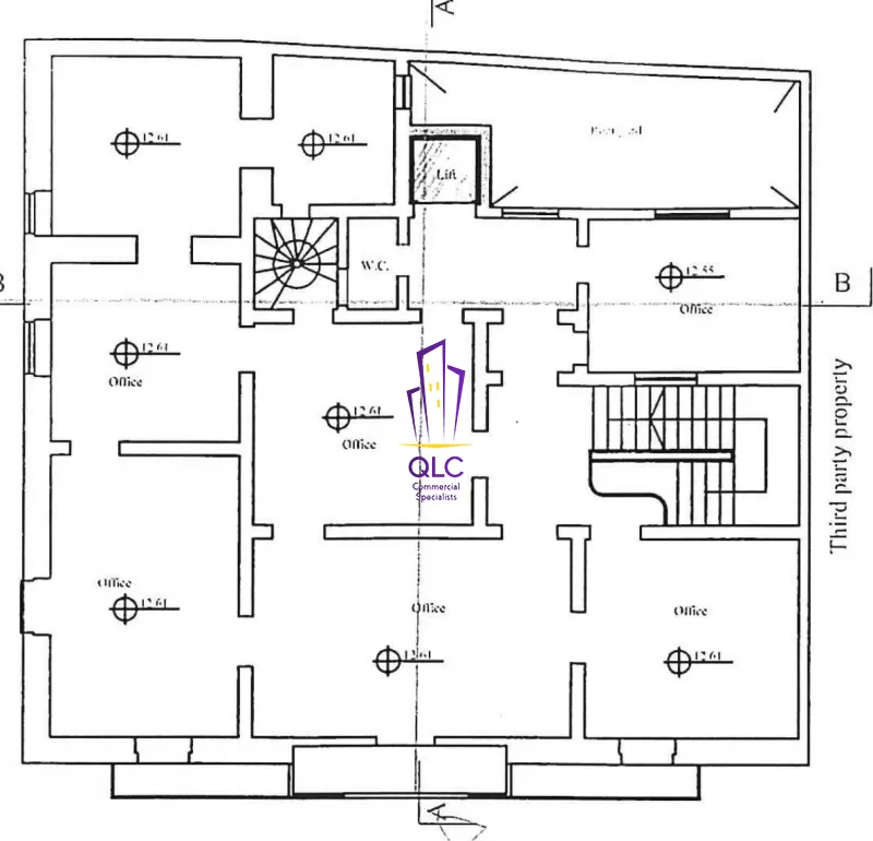
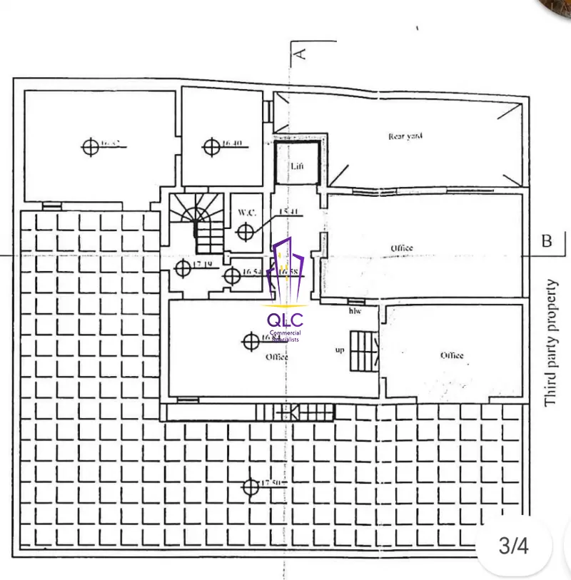
7 spacious rooms are on 3rd floor enjoying high ceilings, beautiful patterned tiles and having access to a lovely double fronted Maltese balcony. Leading upstairs either through staircase or lift to a further 4 rooms on 4th floor with access to a large roof terrace, ideal for entertaining.
Equipped with 2 kitchenettes and private bathrooms.
7 spacious rooms are on 3rd floor enjoying high ceilings, beautiful patterned tiles and having access to a lovely double fronted Maltese balcony. Leading upstairs either through staircase or lift to a further 4 rooms on 4th floor with access to a large roof terrace, ideal for entertaining.
Equipped with 2 kitchenettes and private bathrooms.
Contact
Fill out the form and one of our specialist will get in touch with you.
Contact Sean Fleri Soler about Property
Ref No : 62265
Error!
Error!
Error!
Error!