Air Conditioning
Balcony
Kitchenette
Lift
Main Street
Open Plan
Shell
Terrace
Town View
Wheelchair Accessible
Commercial Space for Lease in Central Birkirkara – Ideal for Private Medical Clinic
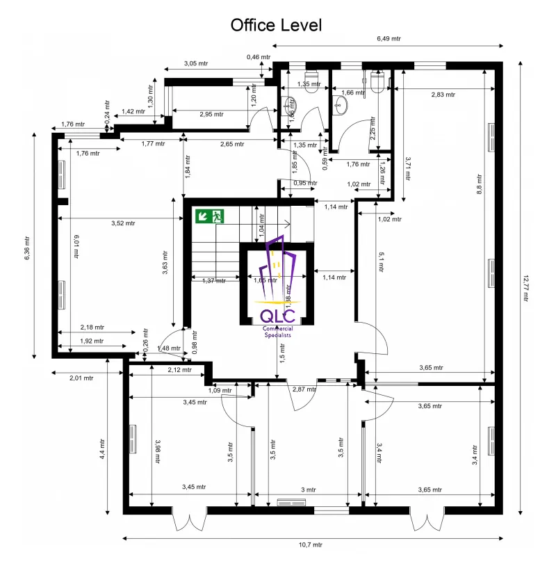
Presenting a prime commercial space of 120 square meters in the heart of Birkirkara, perfectly suited for healthcare professionals seeking a modern and accessible location for a private medical clinic. This centrally located property offers a choice of Level 1, 2, or 3, each with direct lift access, ensuring convenience for both staff and patients, including those with special needs.
The space can be tailored to your specific requirements and comes with the option to be fully finished according to your design preferences. Each level is thoughtfully designed to accommodate six spacious cubicles, perfect for consultation or treatment rooms, along with a well-appointed waiting area to ensure patient comfort.
Additionally, the property features access to the roof, offering potential for further expansion or a relaxation area for staff. Whether you're starting a new practice or expanding an existing one, this commercial space provides the perfect environment for a thriving medical clinic. Don’t miss out on this excellent opportunity in one of Birkirkara's most sought-after locations.
Presenting a prime commercial space of 120 square meters in the heart of Birkirkara, perfectly suited for healthcare professionals seeking a modern and accessible location for a private medical clinic. This centrally located property offers a choice of Level 1, 2, or 3, each with direct lift access, ensuring convenience for both staff and patients, including those with special needs.
The space can be tailored to your specific requirements and comes with the option to be fully finished according to your design preferences. Each level is thoughtfully designed to accommodate six spacious cubicles, perfect for consultation or treatment rooms, along with a well-appointed waiting area to ensure patient comfort.
Additionally, the property features access to the roof, offering potential for further expansion or a relaxation area for staff. Whether you're starting a new practice or expanding an existing one, this commercial space provides the perfect environment for a thriving medical clinic. Don’t miss out on this excellent opportunity in one of Birkirkara's most sought-after locations.
Contact
Fill out the form and one of our specialist will get in touch with you.
Contact Mirko Abbracciavento about Property
Ref No : 62094
Error!
Error!
Error!
Error!